- Tư vấn thiết kế
Tư vấn thiết kế nội thất cho nhà vườn 4 mặt thoáng
Cập nhật: 30/12/2019 | 10:28:44 PM
Tư vấn thiết kế nội thất cho nhà vườn 4 mặt thoáng : Mẫu nhà vườn 1 tầng hay cũng có thể gọi là nhà cấp 4 lần này có chủ đầu tư là chị Thanh ở Sơn Tây, chị mong muốn xây dựng một căn nhà cấp 4 dành cho gia đình có 3 người của mình cùng sinh sống.
Sau khi thiết kế căn nhà và đã hoàn thành phần kiến trúc, giờ đây chị đang lo lắng về cách bố trí đồ nội thất sao cho vừa đáp ứng chuẩn công năng lại không phạm vào phong thủy nên chị đã tìm đến công ty Kiến Tạo Việt nhờ được tư vấn. Đây cũng là vấn đề được khá nhiều chủ đầu tư quan tâm, chính vì thế chúng tôi đưa bài viết tư vấn thiết kế nội thất cho nhà vườn 4 mặt thoáng lên đây để các quý vị độc giả cùng tham khảo làm sao để có một không gian bên trong đẹp cho căn nhà.
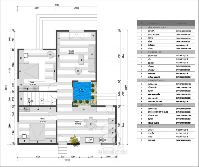
Mặt bằng mẫu tư vấn thiết kế nội thất cho nhà vườn 4 mặt thoáng
Với mặt bằng hiện trạng mẫu nhà vườn đẹp, các không gian chức năng được phân chia khá hợp lý và khoa học. Chỉ duy nhất không gian được thay đổi là nhà vệ sinh từ cuối nhà chuyển lên giữa hai phòng ngủ để thuận tiện cho cả nhà sử dụng. Căn nhà có ưu điểm 4 mặt cùng với đó đó các không gian chức năng có diện tích khá là lý tưởng. Vì vậy, chúng tôi sẽ đi sâu vào tư vấn bố trí nội thất và đưa ra một số ảnh mẫu phù hợp với phong thủy của từng thành viên trong gia đình

Mặt bằng mẫu tư vấn thiết kế nội thất cho nhà vườn 4 mặt thoáng
Bước vào mẫu nhà vườn đẹp là không gian phòng khách với cách bố trí nội thất gọn gàng, đơn giản mà bắt mắt. Bộ ghế sofa chữ I áp tường kết hợp với ghế bành thư giãn sẽ đem lại một không gian sang lý tưởng hơn. Xung quanh là những đồ nội thất cần thiết như: kệ tivi, tủ sách, tủ đựng giầy. Ngoài ra để không gian thêm sinh động bạn có thể bố trí một bể cá bên cạnh kệ ti vi. Không gian này sẽ vô cùng thú vị và hiện đại, vừa có nước, có cây lại có gió nhờ khu vực tiểu cảnh hồ nước nằm giữa phòng bếp và phòng khách.

Phòng khách mẫu tư vấn thiết kế nội thất cho nhà vườn 4 mặt thoáng
Khu vực bếp và phòng ăn nằm ở phía cuối nhà, từ không gian này có thể nhìn sang phòng khách qua cửa kính lớn. Để không gian bếp được rộng rãi hơn thì sự lựa chọn tủ bếp chữ L là giải pháp hiệu quả nhất. Kết hợp với đó việc sử dụng bàn ăn tròn trong không gian vuông sẽ làm cho căn phòng trở nên mềm mại hơn. Ngoài ra bạn có thể bố trí thêm ghế ngồi gần hồ để thư giãn hoặc đọc sách, nơi đây là không gian dễ chịu để xả strees cho gia đình bạn.

Phòng bếp mẫu tư vấn thiết kế nội thất cho nhà vườn 4 mặt thoáng
Đối diện với phòng khách và bếp là không gian sinh hoạt riêng của các thành viên gồm phòng ngủ con và phòng ngủ master. Phòng ngủ master là nơi sinh hoạt riêng của vợ chồng chị Thanh với cách thiết kế sáng tạo kết hợp với đồ nội thất hiện đại như: Giường ngủ, tủ quần áo, bàn làm việc kết hợp trang điểm.

Không gian nhà đẹp – Phòng ngủ master mẫu tư vấn thiết kế nội thất cho nhà vườn 4 mặt thoáng
Nhà vệ sinh chung được bố trí giữa hai phòng n ngủ để thuận tiện cho việc sử dụng của cả gia đình. Riêng phòng ngủ con có diện tích hạn chế hơn so với phòng ngủ của bố mẹ. Vì vậy cách bố trí nội thất sẽ có phần khác hơn để không gian căn phòng trở nên gọn gàng và rộng rãi. Việc bố trí căn phòng của con với góc học tập được đặt bên cạnh cửa sổ sẽ giúp con học tập hiệu quả hơn. Với phương án bố trí trên, chúng tôi đã giúp chị Thanh tìm được cách bố trí nội thất tiện nghi cũng như đáp ứng nhu cầu sinh hoạt mà chị và gia đình mình mong muốn.
(Nguồn: nhadepktv.vn)
- Tin tức khác
- Tìm kiếm bất động sản
- Bán
- Cho thuê
- Loại nhà đất
- Diện tích
- Mức giá
- Số phòng
- Hướng nhà
- Tìm nâng cao
- Dự án nổi bật
À La Carte Halong Bay
Dự Án The Crown Villas Thái Nguyên
Rosa Luxury Villas
ivory villas & resort
La Queenara Hội An
Sakana Resort Hòa Bình
Hasu Village
FLC Quảng Bình
Golden Westlake
Khu nhà ở Bắc Hà
Chung cư B4 - B14 Kim Liên
Toà nhà 93 Lò Đúc - Kinh Đô Tower
Toà nhà 27 Huỳnh Thúc Kháng
Vinhomes Ocean Park 3 - The Crown Hưng Yên
Hinode Royal Park
- Hỗ trợ tiện ích
- Môi giới tiêu biểu-



























