- Tư vấn thiết kế
Thiết kế biệt thự nhà vườn tiện nghi, hòa hợp với thiên nhiên
Cập nhật: 19/12/2019 | 8:23:58 AM
Bạn đang có một mảnh đất rộng và muốn xây cho mình một căn biệt nhà vườn tiện nghi và hòa hợp với thiên nhiên. Nhưng hiện bạn vẫn phân ý tưởng gì dành cho căn biệt thự của mình, thì trong bài viết này sẽ giới thiệu một mẫu thiết kế biệt thự nhà vườn hiện đại rất ưng ý, hài lòng với phương án thiết kế này.

Thông tin về thiết kế biệt thự nhà vườn
Diện tích đất : 1053(m2)
Diện tích sàn 1: 267(m2)
Diện tích sàn 2: 54(m2)
Diện tích bể bơi: 45(m2)
Tổng diện xây dựng: 366(m2)
Chủ đầu tư: Anh Đông
Địa chỉ công trình : xã Triệu Đề – huyện Lập Thạch – tỉnh Vĩnh Phúc.
Đơn vị thiết kế : Công ty tư vấn Kiến trúc và Xây dựng Trang Kim
Phương án bố trí công năng biệt thự vườn
Mặt bằng tầng 1: Không gian để xe, tiền sảnh, phòng khách, bếp + ăn, cầu thang bộ + wc, 03 phòng ngủ trong đó có 01 phòng ngủ có wc khép kín, sảnh phụ, bể cá koi, đường dạo lát đá trồng cỏ nhật, bể bơi …
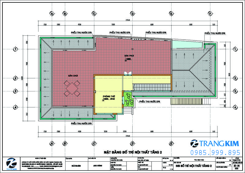
Măt bằng tầng 2: Thang bộ, sân trời, phòng thờ,
Mặt bằng thiết kế biệt thự nhà vườn
Căn biệt thự được xây dựng trên mảnh đất rộng với diện tích vào khoảng 1053m2 tại Vĩnh Phúc. Trong đó phần diện tích xây dựng biệt thự nhà vườn là 366m2, còn phần diện tích còn lại dùng để bố trí khu vực sân vườn, bể bơi. Căn nhà được thiết kế đặt việc hòa hợp với thiên nhiên lên là ưu tiên hàng đầu, bởi vậy căn nhà bố trí rất nhiều sảnh nhìn ra khu vườn rất xanh được bố trí xung quanh nhà.
Bước vào cổng là bên trái là khu vực dùng để ô tô, không gian được bố trí khá rộng có thể để vừa được 2 chiếc ô tô một cách khá thoải mái. Tiếp đến là một khu vực cũng khá đặc biệt của căn nhà, đó là một tiểu cảnh nước khá rộng để chủ nhà nuôi cá Koi.
Dọc đó là một con đường gạch dẫn đến sau nhà, đây chính là không gian thư giãn giải trí chủ yếu của các thành viên trong gia đình với không gian xanh mướt và một bể bơi ngoài trời khá là rộng cho những bữa tiệc BBQ vào cuối tuần. Để thuận tiện hơn thì một khu vệ sinh nhỏ được bố trí không quá xa bể bơi.
Đến đây thì bạn thắc mắc, sao trong trong thiết kế lại có một khu vực để xe nữa? Bởi vì mỗi cuối tuần gia chủ thường mời người thân, bạn bè đến chơi với gia đình nên cần thiết thêm một nơi để xe ô tô nữa để đáp ứng được mỗi khi có khách đảm bảo đủ chỗ để xe.

Mặt bằng định vị công trình
Mặt bằng tầng 1
Bước vào nhà từ sảnh chính là không gian phòng khách khá rộng khoảng hơn 35m2, điều đặc biệt cũng như tạo điểm nhấn cho phòng khách này chính là khu vườn nhỏ phía sau với tấm kính lớn để có thể đón nhận được nhiều gió thoáng cũng như ánh sáng tự nhiên vào phòng. Nếu mở của kính thì sẽ mang lại cảm giác gần gũi với thiên nhiên bên ngoài khiến mọi người ngồi trong phòng khách có được sự thoải mái, thư giãn nhất.
Tiếp sau phòng khách chính là không gian bếp và phòng ăn. Không gian này khoảng chừng 35m2 đủ rộng để mọi thành viên trong gia đình có thể tập trung cùng nấu ăn, ăn uống tạo được không khí đầm ấm cũng như những mối liên kết giữa các thành viên trong gia đình.
Ngoài ra căn nhà còn được bố trí 3 phòng ngủ, trong đó phòng ngủ master dành cho bố mẹ được bố trí khu vệ sinh khép kín, và 2 phòng ngủ con sử dụng khu vệ sinh chung. Việc thiết kế trong 2 phòng ngủ của con không có phòng vệ sinh chung bởi gia chủ có mong muốn con cái thường xuyên giao tiếp với bố mẹ thay vì chỉ ngồi trong phòng. Phòng ngủ master được thế kế đặc biệt với diện tích rộng có một mặt nhìn ra khoảng sân vườn phía sau nhà với view rất đẹp và đây được đánh giá là phòng ngủ đẹp nhất của toàn bộ căn biệt thự.

Mặt bằng tầng 1
Mặt bằng tầng 2
Trên tầng 2 này chủ nhà dành một phần diện tích khoảng 29m2 để làm không gian phòng thờ, còn đâu hầu như toàn bộ mặt sàn là để làm không gian phơi quần áo cũng như để làm sân chơi đem đến một không gian nghỉ ngơi tuyệt vời cho các thành viên trong gia đình.
Ngoài ra trong tương lai gia chủ còn có nhu cầu thêm không gian sinh hoạt cho gia đình thì cũng rất thuận tiện cho việc nâng cấp, xây dựng thêm tầng nữa.

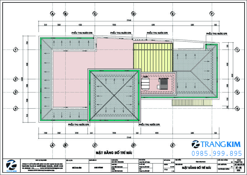
Mặt bằng tầng mái
.jpg)
Mặt bằng tầng mái
Phối cảnh thiết kế biệt thự nhà vườn
Từ hình ảnh phối cảnh kiến trúc có thể thấy công trình được thiết kế theo phong cách kiến trúc biệt thự nhà vườn hiện đại với những không gian sinh hoạt của gia đình được thiết kế mở tối đa với cửa sổ lớn để lấy ánh sáng và gió, quan trọng hơn cả là có tầm view thoáng ra những không gian cây xanh và bể bơi ngoài trời.
Cây xanh, mặt nước là điều không thể thiếu trong thiết kế biệt thự nhà vườn nó góp phần tạo nên một bầu không khí trong lành giúp con người gần gũi với thiên nhiên.



Cảm ơn bạn đã quan tâm đến mẫu biệt thự nhà vườn đẹp, tiện nghi. Chúc bạn sớm có được ý tưởng thiết kế ưng ý
(Nguồn: kientructrangkim.com)
- Tin tức khác
- Tìm kiếm bất động sản
- Bán
- Cho thuê
- Loại nhà đất
- Diện tích
- Mức giá
- Số phòng
- Hướng nhà
- Tìm nâng cao
- Dự án nổi bật
À La Carte Halong Bay
Dự Án The Crown Villas Thái Nguyên
Rosa Luxury Villas
ivory villas & resort
La Queenara Hội An
Sakana Resort Hòa Bình
Hasu Village
FLC Quảng Bình
Golden Westlake
Khu nhà ở Bắc Hà
Chung cư B4 - B14 Kim Liên
Toà nhà 93 Lò Đúc - Kinh Đô Tower
Toà nhà 27 Huỳnh Thúc Kháng
Vinhomes Ocean Park 3 - The Crown Hưng Yên
Hinode Royal Park
- Hỗ trợ tiện ích
- Môi giới tiêu biểu-



























