- Tư vấn thiết kế
Thiết kế biệt thự nhà vườn 1 tầng 200m2
Cập nhật: 30/12/2019 | 10:32:00 PM
Mẫu thiết kế biệt thự nhà vườn 1 tầng 200m2 : Ngày này kiến trúc nhà vườn được nhiều người quan tâm bởi nó vừa thể hiện một nét đẹp độc đáo trong thiết kế đồng thời nó toát lên cho bạn một không gian sống với công năng sử dụng đầy đủ gần gũi với thiên nhiên và tất nhiên mang một phong cách hiện đại bắt kịp theo xu hướng phát triển của xã hội.
Mà đặc biệt là chi phí để hoàn thiện ngôi nhà rất nhiều người có khả năng để sở hữu nó. Và đó chính là mẫu thiết kế biệt thự nhà vườn 1 tầng 200m2 chúng tôi gửi tới các bạn hôm nay.
Giới thiệu mẫu thiết kế biệt thự nhà vườn 1 tầng 200m2
Chỉ với 1 tầng nhưng mẫu thiết kế biệt thự này vẫn đầy đủ công năng sử dụng, các không gian riêng để sinh hoạt chung của cả gia đình cùng như để nghỉ ngơi, thư giãn riêng tư đều rất hiện đại. Với mái chéo dốc xuống sẽ giúp không bị đọng nước và nhanh khô ráo khi trời mưa chính vì thể mà không bị ẩm mốc cho mái nhà. Bao quanh ngôi nhà đẹp là rất nhiều cây xanh cùng với cửa sổ và cửa chính là bằng kính cường lực trong suốt nên ngôi từ trong nhà view ra sân vườn bên ngoài tuyệt đẹp.

Phối cảnh – Thiết kế biệt thự nhà vườn 1 tầng 200m2
Dù nhìn ở góc nào đi nữa thì mẫu biệt thự đẹp hiện đại phong cách nhà vườn 1 tầng này vẫn toát lên một vẻ đẹp rất dịu nhẹ quyến rũ. Bên ngoài sân được trồng nhiều cây xanh nhằm đưa không khí trong lành mát mẻ vào bên trong ngôi nhà nên chủ nhà sẽ luôn có cảm giác mát mẻ mỗi khi trở về nhà, thêm vào đó để cảm nhận được thiên nhiên gần gũi hòa mình với con người là cho cuộc sống thêm sinh động và có giá trị hơn.

Góc 1 – Thiết kế biệt thự nhà vườn 1 tầng 200m2
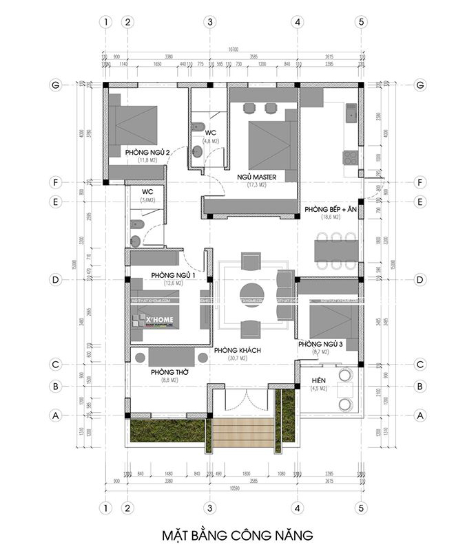
Không chỉ đẹp ở mặt tiền cân đôi hài hòa mà kết cấu bên trong của mẫu nhà vườn 1 tầng này cũng được sắp xếp và bố trí rất ăn khớp với nhau tạo nên một không gian nghỉ dưỡng mà ai cảm thấy tuyệt vời. Bậc tam cấp và sảnh làm bước đệm chính để vào phòng khách. Lợi thế diện tích đất rộng nên việc thiết kế các không gian trong nhà cũng thuận tiện và hợp lý hơn gồm 4 phòng ngủ, 1 phòng khách, 1 phòng ăn và 1 phòng thờ. Tất cả các không gian đều được đặt ở những vị trí hợp phong thủy, thoáng mát nhận được nhiều ánh sáng và gió tự nhiên.

Mặt bằng – Thiết kế biệt thự nhà vườn 1 tầng 200m2
Với chi phí chỉ khoảng 700 triệu ( chưa bao gồm nội thất) là bạn đã có được một ngôi nhà vườn đẹp như mơ với không gian sống hiện đại và tiện nghi cùng lối thiết kế độc đáo và sáng tạo mẫu nhà đã mang đến một vẻ đẹp dịu dàng và thoáng mát.

Góc 2 – Thiết kế biệt thự nhà vườn 1 tầng 200m2
Đó là mẫu thiết kế biệt thự 200m2 được chúng tôi phân tích và gửi tới các bạn rất chi tiết, thiết kế đơn giản, chi phí phù hợp với khả năng tài chính của nhiều gia đình nên bạn hoàn toàn có thể sở hữu một không gian như thế.
(Nguồn: nhadepktv.vn)
- Tin tức khác
- Tìm kiếm bất động sản
- Bán
- Cho thuê
- Loại nhà đất
- Diện tích
- Mức giá
- Số phòng
- Hướng nhà
- Tìm nâng cao
- Dự án nổi bật
À La Carte Halong Bay
Dự Án The Crown Villas Thái Nguyên
Rosa Luxury Villas
ivory villas & resort
La Queenara Hội An
Sakana Resort Hòa Bình
Hasu Village
FLC Quảng Bình
Golden Westlake
Khu nhà ở Bắc Hà
Chung cư B4 - B14 Kim Liên
Toà nhà 93 Lò Đúc - Kinh Đô Tower
Toà nhà 27 Huỳnh Thúc Kháng
Vinhomes Ocean Park 3 - The Crown Hưng Yên
Hinode Royal Park
- Hỗ trợ tiện ích
- Môi giới tiêu biểu-



























