- Tư vấn thiết kế
Mẫu thiết kế & Bản vẽ biệt thự 2 tầng nhà vườn 10x15m cực đẹp 2018
Cập nhật: 30/12/2019 | 10:38:29 PM
Mẫu biệt thự đẹp 2 tầng nhà vườn 10x15m – Hôm nay chúng tôi tiếp tục gửi đến các bạn đọc mẫu biệt thự đẹp 2 tầng nhà vườn mang phong cách hiện đại dành cho cặp vợ chồng trẻ cùng 2 con đang sinh sống tại Úc.
Chủ nhân cùng gia đình mong muốn có một không gian nghỉ dưỡng thật tuyệt vời tích hợp nhà vườn đẹp, đầy sức sống bao xung quanh. Công trình từ cách bố trí ngoại thất và nội thất tinh tế, khéo léo làm hài lòng người sử dụng cũng như mãn nhãn các vị khách khi ghé thăm.
Giới thiệu mẫu biệt thự đẹp 2 tầng nhà vườn 10x15m phong cách hiện đại.
Tọa lạc trên khu đất có diện tích khá rộng chừng 125.41 m2 mẫu nhà vườn đẹp 2 tầng được tạo hình với các mảng khối, chi tiết ngoại thất một cách đơn giản. Cùng với đó là các vật liệu sử dụng như đá ốp tường trang trí, hệ thống khung cửa kính lớn nhỏ, hệ thống thông khói…khiến công trình toát lên ngôn ngữ cho phong cách hiện đại. Đặc biệt là phần mái có kiểu dáng mái dốc lợp ngói tông màu đen nổi bật trên nền sơn tường trắng chủ đạo.

Mẫu biệt thự đẹp 2 tầng nhà vườn 10x15m- Phối cảnh tổng thể
Toàn bộ công trình nằm ở trung tâm khuôn viên vườn xanh mướt của cây cối lớn, nhỏ, sắc màu tươi thắm của những bông hoa khoe sắc hòa quyện dưới ánh nắng tự nhiên chan hòa. Thêm nữa, trên tấm thảm cỏ xanh trước nhà một lối đi bằng bê tông màu trắng dẫn từ cổng chính đi vào không gian sống tạo nên một mặt tiền thoáng đãng cũng như thuận tiện cho người sử dụng.
Phương án công năng dành cho mẫu biệt thự đẹp 2 tầng nhà vườn 10x15m
Đi vào không gian sống chủ nhân sẽ dễ dàng nhận thấy một không gian tiện nghi, thoáng mát, hiện đại và lôi cuốn với công năng sử dụng được bố trí hợp lý, khoa học cùng cách trang trí nội thất trong ngôi nhà một cách khéo léo và tinh tế.
Mặt bằng tầng 1:
Không gian tầng 1 sẽ được phân chia thành các không gian chức năng như: phòng khách, khu bếp, phòng ăn, phòng làm việc, khu vệ sinh khép kín, khoảng sảnh hiên phía sau và khu garage nằm ở sân vườn sau nhà. Mỗi căn phòng là cách bài trí nội thất tối giản nhưng hiện đại, tông màu tươi sáng kết hợp nội thất gỗ và một không gian hướng mở ra khuôn viên nhà vườn đầy sức sống bên ngoài. Đáng chú ý là tại căn phòng khách có bài trí thêm một lò sưởi nhân tạo và hiện đại mang lại sự ấm áp cho căn phòng đặc biệt khi những ngày đông lạnh giá. Ngoài ra, tất cả mỗi căn phòng có nhiều khung cửa kính lớn, nhỏ tạo góc nhìn tuyệt đẹp trong đó phía sau nhà là cửa lớn khung gỗ kết hợp kính mở trực tiếp ra sảnh hiên phía sau mang lại một không gian thư giãn ngoài trời thật tuyệt để cả gia đình cùng tận hưởng.

Mẫu biệt thự đẹp 2 tầng nhà vườn 10x15m- Mặt bằng tầng 1
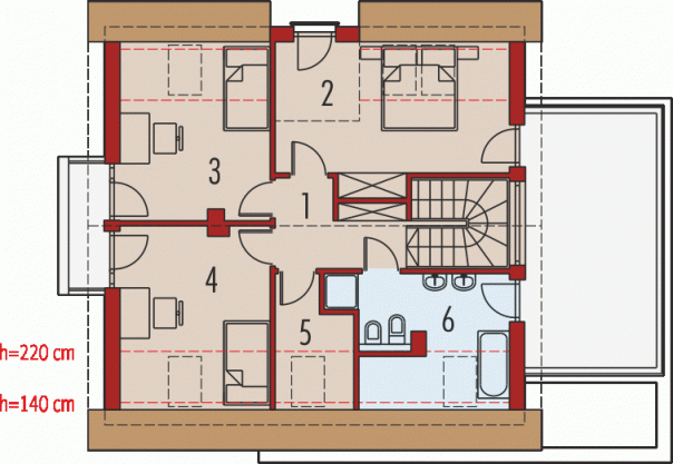
Mặt bằng tầng 2:
Lên đến tầng 2 sẽ là không gian sinh hoạt và nghỉ ngơi của các thành viên trong gia đình gồm có 4 phòng ngủ, 1 khu công trình phụ rộng thiết kế hiện đại và còn lại là khoảng sảnh thang, thông tầng. Các bố trí nội thất hiện đại, thông thoáng và tiện nghi tương tự không gian tầng 1 nhưng căn phòng ngủ của chủ nhà là phòng master hiện đại, sang trọng và có ban công rộng rãi kết hợp tiểu cảnh đẹp phía ngoài.

Mẫu biệt thự đẹp 2 tầng nhà vườn 10x15m- Mặt bằng tầng 2
Hình ảnh căn phòng khách nằm ở vị trí đầu tiên khi đi từ cửa chính vào toát lên một không gian hiện đại, sang trọng và thông thoáng. Tông màu ghi đậm thật nổi bật trên nền sơn tường tươi sáng màu trắng chủ đạo kết hợp cùng nội thất gỗ màu sáng. Chỉ bằng sự trang trí tối giản thô i nhưng sự kết hợp của các vật dụng như sofa, kệ tivi hài hòa với các phụ kiện trang trí khiến căn phòng trở nên thật ấn tượng, lôi cuốn làm mãn nhãn gia chủ.

Mẫu biệt thự đẹp 2 tầng nhà vườn 10x15m- Ảnh 01
Khu bếp, phòng ăn nằm liên thông với phòng khách và được sử dụng nội thất gỗ địa phương chủ đạo. Góc nấu nướng và khu vực ăn uống hiện lên tươi sáng, căn phòng tràn ngập ánh sáng tự nhiên và đặc biệt chủ nhân cùng các thành viên có thể vừa ăn uống trong khi vẫn quan sát được khung cảnh thiên nhiên và khuôn viên vườn đẹp bên ngoài.

Mẫu biệt thự đẹp 2 tầng nhà vườn 10x15m- Ảnh 02
Dù ở trước hay sau nhà chủ nhân đều cảm nhận được sự ấm áp của nội thất gỗ bài trí, sự gần gũi với thiên nhiên khi các không gian sống đều được hướng mở. Tất cả khiến cho con người trở nên thật thư thái để hòa mình với khung cảnh thiên nhiên trong lành và đầy sức sống.

Mẫu biệt thự đẹp 2 tầng nhà vườn 10x15m- Phối cảnh góc
Như vậy chúng tôi công ty thiết kế kiến trúc nhà đẹp đã giới thiệu đến các bạn đọc cùng tham khảo một mẫu biệt thự 2 tầng nhà vườn 10x15m nằm ẩn mình giữa khuôn viên mẫu nhà vườn đầy sức sống. Với cách bài trí, bố trí nội ngoại thất như vậy đã mang lại một không gian nghỉ dưỡng thật tuyệt vời để cả gia đình cùng tận hưởng.
(Nguồn: nhadepktv.vn)
- Tin tức khác
- Tìm kiếm bất động sản
- Bán
- Cho thuê
- Loại nhà đất
- Diện tích
- Mức giá
- Số phòng
- Hướng nhà
- Tìm nâng cao
- Dự án nổi bật
À La Carte Halong Bay
Dự Án The Crown Villas Thái Nguyên
Rosa Luxury Villas
ivory villas & resort
La Queenara Hội An
Sakana Resort Hòa Bình
Hasu Village
FLC Quảng Bình
Golden Westlake
Khu nhà ở Bắc Hà
Chung cư B4 - B14 Kim Liên
Toà nhà 93 Lò Đúc - Kinh Đô Tower
Toà nhà 27 Huỳnh Thúc Kháng
Vinhomes Ocean Park 3 - The Crown Hưng Yên
Hinode Royal Park
- Hỗ trợ tiện ích
- Môi giới tiêu biểu-



























